Proteção, Valorização
A SUA OBRA LIVRE DE IMPREVISTOS
Na Ralife Engenharia, somos apaixonados por proteger construções contra os danos causados pela umidade e infiltrações. Nossa equipe é composta por engenheiros e técnicos altamente qualificados, com vasta experiência em consultoria e projetos de impermeabilização.
Desde residências até grandes edificações comerciais, trabalhamos com precisão e comprometimento para garantir a satisfação de nossos clientes. Nossa missão é oferecer soluções inovadoras e eficientes, sempre priorizando a qualidade e a durabilidade.
Nossos consultores são altamente qualificados e possuem vasta experiência em diversos tipos de construções. Confie na Ralife Engenharia para proteger seu investimento e garantir a integridade de sua edificação.

Transforme a Engenharia da sua Obra.
“Erros de impermeabilização custam caro, mas a solução está a um clique. Conheça nosso rigoroso padrão de detalhamento e aproveite para baixar o conteúdo técnico que protege os maiores empreendimentos do país.”
Este projeto de impermeabilização para áreas de jardins, desenvolvido pela RALIF ENGENHARIA, une proteção estrutural absoluta e preservação paisagística. Com técnicas avançadas de drenagem e vedação, evitamos infiltrações prejudiciais à estrutura, garantindo a vitalidade do seu projeto verde por décadas. Excelência técnica que traz segurança para o seu espaço. Baixe esta etapa do projeto.

O projeto de impermeabilização de lajes da RALIF ENGENHARIA redefine a proteção estrutural. Unindo rigor técnico e inovação sob a NBR 9575, eliminamos infiltrações e combatemos patologias antes que aconteçam. Uma solução inteligente que valoriza seu patrimônio e garante máxima segurança para sua obra. Aproveite agora e baixe esta etapa exclusiva do projeto criada pela RALIF ENGENHARIA!

Este projeto de impermeabilização de reservatórios da RALIF ENGENHARIA une tecnologia de ponta e precisão técnica para garantir estanqueidade total. Com detalhamento rigoroso, eliminamos riscos estruturais e asseguramos a potabilidade da água por décadas. Segurança e economia em uma solução definitiva para sua obra. Aproveite agora para baixar esta etapa exclusiva do projeto criada pela RALIF ENGENHARIA!

Este projeto de impermeabilização de piscinas, desenvolvido pela RALIF ENGENHARIA, redefine a segurança estrutural. Através de detalhes técnicos em 3D e rigorosa conformidade com a NBR 9575, garantimos estanqueidade absoluta e longevidade ao seu patrimônio, evitando custos imprevistos e patologias precoces. Proteja sua obra com quem é autoridade no mercado: aproveite agora e baixe esta etapa exclusiva do projeto criada pela RALIF ENGENHARIA!

Este projeto da RALIF Engenharia apresenta o detalhamento técnico de impermeabilização em subsolo sob pressão freática, solução essencial para proteger estruturas enterradas contra a força da água presente no solo. O sistema garante estanqueidade, segurança estrutural e maior vida útil da edificação. Baixe agora esta etapa do projeto e conheça a engenharia aplicada desenvolvida pela RALIF,

Este projeto da RALIF Engenharia apresenta o detalhamento técnico de impermeabilização em subsolo, solução essencial para proteger fundações e estruturas contra infiltrações, umidade e pressão do lençol freático. O sistema garante maior segurança e durabilidade à edificação, prevenindo danos estruturais. Aproveite e baixe esta etapa do projeto,

Este detalhe técnico da RALIF Engenharia apresenta a solução de impermeabilização em junta de dilatação em lajes planas com platibanda, garantindo flexibilidade, estanqueidade e proteção estrutural contra infiltrações. Desenvolvido conforme as normas da ABNT, o projeto demonstra precisão e engenharia aplicada. Aproveite e baixe esta etapa do projeto criada pela RALIF Engenharia.

Este projeto da RALIF Engenharia apresenta o detalhamento técnico de impermeabilização interna de reservatórios elevados, garantindo estanqueidade, segurança sanitária e durabilidade da estrutura. Desenvolvido conforme as normas da ABNT, o sistema protege contra infiltrações e perdas de água. Aproveite e baixe esta etapa do projeto criada pela RALIF Engenharia,

Este detalhe técnico da RALIF Engenharia apresenta a solução de impermeabilização para rampa de veículos, projetada para suportar tráfego, drenagem eficiente e proteção contra infiltrações. Desenvolvido conforme as normas da ABNT, o projeto garante segurança, durabilidade e desempenho estrutural. Baixe agora esta etapa do projeto e conheça a engenharia aplicada na RALIF Engenharia.
Este projeto da RALIF Engenharia apresenta o detalhamento técnico de impermeabilização em encontro de muro com laje, solução essencial para evitar infiltrações em pontos críticos da edificação. Desenvolvido conforme as normas da ABNT, o projeto garante proteção estrutural e maior durabilidade da obra. Aproveite e baixe esta etapa do projeto elaborada pela RALIF Engenharia.

Este projeto da RALIF Engenharia apresenta o detalhamento técnico de impermeabilização em laje pré-moldada, desenvolvido para garantir estanqueidade, proteção estrutural e maior durabilidade da edificação. Elaborado conforme as normas da ABNT, o projeto demonstra precisão e engenharia aplicada na prevenção de infiltrações. Aproveite e baixe esta etapa do projeto desenvolvida pela RALIF Engenharia.

Este detalhe técnico da RALIF Engenharia apresenta a solução de impermeabilização em laje com isolamento térmico, projetada para garantir proteção contra infiltrações, eficiência térmica e maior durabilidade da estrutura. Desenvolvido conforme as normas da ABNT, o projeto demonstra engenharia aplicada e precisão construtiva. Baixe agora esta etapa do projeto e conheça a qualidade técnica da RALIF Engenharia.

Este detalhe técnico da RALIF Engenharia apresenta a solução de impermeabilização em junta e calha de laje, projetada para garantir estanqueidade, correta drenagem e proteção estrutural contra infiltrações. Desenvolvido conforme as normas da ABNT, o projeto demonstra a precisão da engenharia aplicada na prevenção de patologias. Aproveite e baixe esta etapa do projeto elaborada pela RALIF Engenharia.
Este detalhe técnico desenvolvido pela RALIF Engenharia apresenta a solução de impermeabilização para canaleta em laje de concreto, projetada para garantir drenagem eficiente, proteção estrutural e total estanqueidade conforme as normas da ABNT. Um exemplo de engenharia aplicada para prevenir infiltrações e aumentar a vida útil da edificação. Aproveite e baixe este detalhe de projeto.
Este detalhe técnico da RALIF Engenharia apresenta a solução de impermeabilização para calhas centrais em lajes planas, garantindo drenagem eficiente, proteção estrutural e máxima estanqueidade conforme as normas da ABNT. Um exemplo real de engenharia aplicada para prevenir infiltrações e aumentar a durabilidade da obra. Baixe agora este detalhe de projeto e conheça na prática a qualidade técnica da RALIF Engenharia.

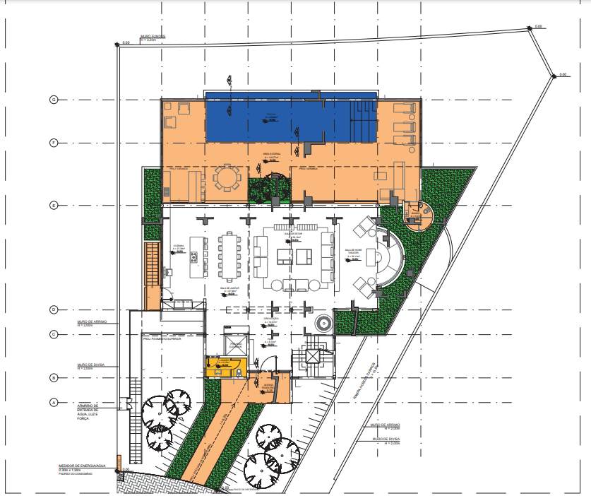
Este projeto da RALIF Engenharia apresenta o planejamento técnico da impermeabilização em áreas molhadas e varandas de uma edificação, garantindo proteção contra infiltrações e maior durabilidade da estrutura. Desenvolvido conforme as normas da ABNT, o projeto demonstra engenharia aplicada e precisão construtiva. Aproveite e baixe esta etapa do projeto criada pela RALIF Engenharia.


